Reforma vivienda
Calle Manuel Iradier

2018

Calle Manuel Iradier

Vitoria-Gasteiz

_

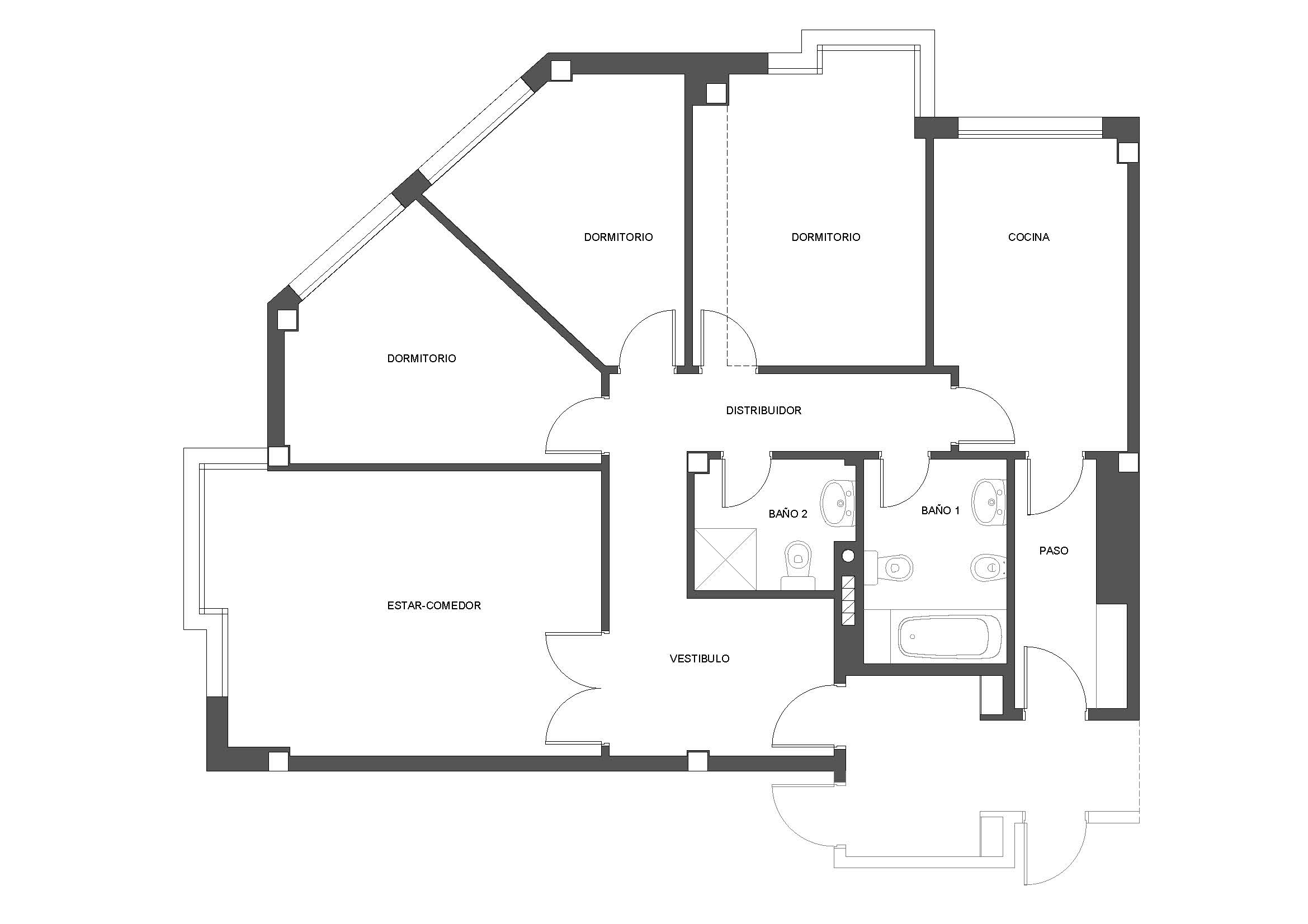
La vivienda se sitúa en un edificio en esquina del ensanche decimonónico, construido en los años 70.

La vivienda mantiene su distribución original y no ha sido reformado hasta la actualidad.

La reforma consiste en una actualización tipológica diferenciando los espacios diurnos y los espacios nocturnos.

Para ello es necesario modificar la situación de la cocina, con objeto de acercarla al estar, quedando comunicada con él.

La antigua cocina se convierte en el dormitorio principal.

La entrada de servicio se reforma para ampliar el baño principal.

Es una reforma contenida, austera, que pretende una actualización y reubicación de los espacios y una mejor comunicación entre ellos.

Únicamente unos pocos materiales: suelo vinílico colocado sobre el existente, carpintería lacada en blanco, gres porcelánico y pintura blanca, además de una iluminación cuidada.

PATXI CORTAZAR ARQUITECTO

pcv@patxicortazar.com
+34 945 15 11 80